$550,000
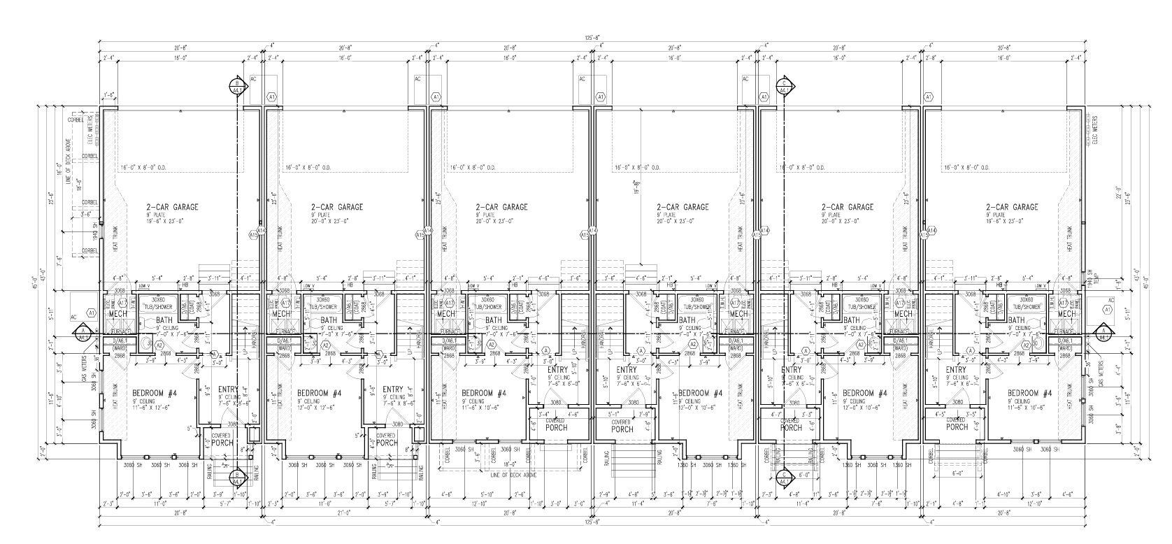
2,143 total sq ft | 2 Garage Spaces
To remember and share all your favorite homes at Daybreak, please sign in to your account. If you don’t yet have an account, it takes just a few moments to create one. And it’s free.
So annoying, right? Well, we’re happy to help. Just enter your email address below and you will receive a secure link via email to create a new password.